A4.11

The Creative Concept: Honest Habitation 
The Modern Meaning of the Space
This apartment, defined by its small size, custom furniture, and raw materials (concrete, wood, and steel), represents a powerful contemporary design statement: Honest Habitation.
Rawly True. Welcomingly Honest.
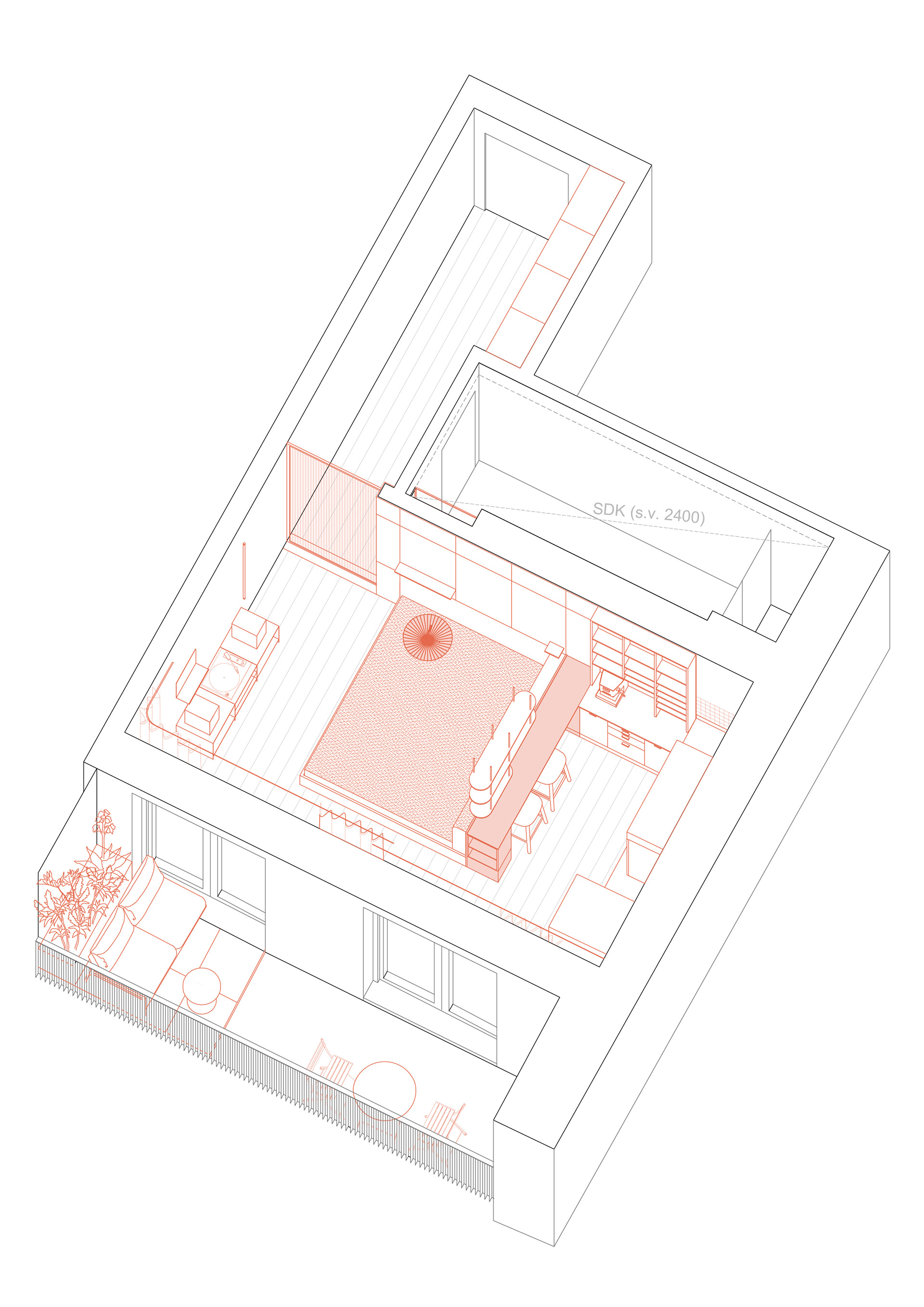
Located in the broader centre of Brno, this 28 m² interior within a new residential building is not merely an exercise in decorating a small flat. Instead, it represents a total transformation achieved through verticality, material authenticity, and optical expansion—a definitive architectural statement on the philosophy of modern living.
Surově pravdivý. Přívětivě upřímný.
Interiér bytu o ploše 28 m2 v novostavbě bytového domu v širším centru Brna. Architektonický princip zde nespočívá v dekorování malého bytu, ale v jeho totální transformaci skrze vertikalitu, materiálovou autenticitu a optickou expanzi. Byt představuje architektonické prohlášení o celkovém přístupu k bydlení.
In a world saturated with digital noise, disposable products, and rapid obsolescence, this apartment acts as an Essentialist Core - a sanctuary built on tangible reality.
Ve světě přesyceném digitálním šumem, jednorázovými výrobky a rychlým zastaráváním funguje tento byt jako esencialistické jádro – útočiště postavené na hmatatelné realitě.
"V malém prostoru je precizní ergonomie zcela zásadní."
The project eliminates "dead zones," ensuring every function flows seamlessly into the next. Despite the limited footprint, individual zones maintain generous proportions that resist any sense of crampedness, offering a level of comfort comparable to far larger interiors.
Projekt eliminuje „bílá místa“. Každá funkce plynule navazuje na druhou. Jednotlivé zóny si však zachovávají rozměry, které nepodléhají stísněnosti bytu, naopak se v detailech projevují nečekaně velkoryse. Uživateli poskytují komfort srovnatelný s mnohem rozlehlejšími interiéry.
The design stands in firm opposition to disposability and consumerism. Material authenticity elevates the space from the purely functional to the philosophical, celebrating durability and truth over fleeting trends. It is deeply sensorially grounded; the choice of materials ensures a vital connection to the physical world, providing an anchoring sensory experience as a necessary counterweight to a modern, often virtual existence.
Vzpírá se jednorázovosti a konzumerismu. Materiálová autentičnost povyšuje prostor z čistě funkčního na filozofický; oslavuje trvanlivost a pravdu nad dočasnými trendy a spotřebou. Je také senzoricky ukotvený. Právě použité materiály zajišťují spojení s fyzickým světem. Rozličné vlastnosti materiálů nabízejí hluboký, uzemňující smyslový zážitek – nezbytnou protiváhu k modernímu, mnohdy virtuálnímu životu.
Prostorově skromný obytný prostor se velkými okny rozlévá do lodžie, která se na teplejší část roku stává obývacím pokojem. Lodžije je díky vhodné orientaci po většinu dne zalita sluncem. 


The modest living space with large windows spills out into a loggia, which becomes a living room during the warmer part of the year. Thanks to its convenient orientation, the loggia is bathed in sunlight for most of the day.
"Překvapivě velký, na to, jak je malý."
Though small, the atelier feels surprisingly vast. New full-height doors, beech wall cladding, and long, sweeping curtains draw the eye upwards, encouraging a subconscious perception of the entire spatial volume and adding a crucial vertical dimension. Strategic placement of mirrors on walls, wardrobes, and in corners creates an effect of "infinite depth." Together with a wall-to-wall glossy curtain, these elements form a kinetic apparatus that multiplies light in all its forms and moods.
Nové dveře na celou světlou výšku, bukový obklad stěny, dlouhé vlny závěsů. To vše přitahuje pohled vzhůru, což způsobuje nevědomé vnímání celé výšky prostoru a dodává bytu vertikální rozměr. Strategické umístění zrcadel na stěnách, skříních a v rozích místnosti vytváří „nekonečnou hloubku“. Společně s lesklým závěsem přes celou stěnu vzniká kinetický aparát, který násobí světlo ve všech jeho podobách a náladách.
Back to Top